LEST
ARQUITECTO
Alejandro de la Sota fue un arquitecto nacido en Pontevedra. Estudió en la Escuela Técnica Superior de Arquitectura de Madrid.
No es hasta en los años 50 que consigue reconocimiento al presentarse a varios concursos y en los que realizó algunos de sus mejores proyectos. El proyecto que está considerado su obra maestra es el Gobierno Civil de Tarragona. Es a finales de los años 50 que empieza a desmaterializar su arquitectura y aparece una preocupación por diferenciar lo compacto de lo abierto en los espacios interiores.
ENCARGO
En 1973 Mª Carmen Lino, prima de Alejandro, y Enrique Domínguez, su marido, le propusieron a De La Sota la construcción de su futura casa. La familia contaba con 10 hijos, más una trabajadora interna por lo que se necesitaba un gran programa que incluyese generosos espacios de almacenaje, un número suficiente de baños y un depósito de agua potable.
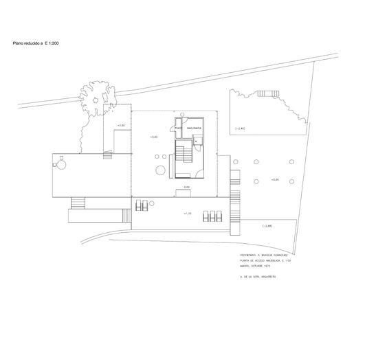
La parcela se encuentra en Pontevedra, en una urbanización llamada A Caeira. Tiene pendiente en dirección sur, esto crea una relación con la vivienda que da lugar a la forma de los recorridos siendo estos necesarios para entender parte del concepto de la casa.

CONCEPTO DE VIVIENDA
El programa principal de la mayoría de las viviendas unifamiliares distribuye sus estancias en día y noche, siendo esta última la que se sitúa arriba. Esto permite más privacidad siendo la planta de día la más activa. Ambos bloques suelen situarse por encima del terreno, en caso de tener sótano este se entierra.

En nuestro caso, Alejandro de la Sota invierte los bloques. Su idea es diferente al inspirarse en Saarinen (un arquitecto finlandés), realiza un dibujo de forma de cacahuete donde aprieta el centro para diferenciarlos y, llegado a un punto, se separan creando dos bloques. Para él la zona de descanso se sitúa bajo tierra ya que lo relaciona con el descanso. El bloque de día se encuentra por encima del terreno, es donde se desarrolla la vida, el más activo. Entre ellos encontramos un vacío, se coloca al pretender separar para afirmar el concepto. Este vacío se configura como un elemento para la yuxtaposición de elementos de distinta naturaleza.
El primer proyecto donde aplica este concepto es en La Casa Guzmán no construida. Esta es la que inspira a Alejandro de La Sota a la hora de realizar La Casa Dominguez.


EVOLUCIÓN DEL PROYECTO
El concepto de la vivienda deriva del proyecto no construido de La Casa Guzmán, se diferenciaban los bloques pero el superior al ser todo de vidrio era demasiado costoso y el cliente lo rechaza, de este modo le plantea la idea a los dueños de La Casa Dominguez. Alejandro de la Sota cambia de opinión y modifica todo el proyecto pero el concepto se mantiene, continúa con su desarrollo pero realiza algunos cambios necesarios.


VOLUMENES DE LA VIVIENDA
Vamos a realizar un estudio general para entender el uso de los diferentes volúmenes para esta vivienda. Comenzando por el bloque superior incorpora la zona más doméstica destinado a la vida cotidiana o de relación.
En cuanto al bloque central, en una primera versión el programa incorporaba el acceso al garaje y el cuarto de juegos para niños, de este modo la planta era ya una zona habitada. La superficie total de este bloque era de un tamaño excesivo por lo que reorganiza las estancias para minimizar el espacio. En la segunda versión incorpora estas estancias en el estrato enterrado, de este modo este bloque central es único de acceso teniendo la escalera y el ascensor de comunicación vertical. Al ser una zona techada el bloque, (además de acceso) se emplea como jardín cubierto a causa del clima en los días de lluvia. Es un espacio donde los niños juegan, se realizan celebraciones o es una zona de sombra en verano.
Por último, en la parte inferior encontramos un lugar en silencio dedicado exclusivamente al reposo y el recogimiento.

En cuanto al tema de la materialidad, encontramos que cada bloque es diferente. La zona de noche es una piel cerámica de gres color terracota. Esto se relaciona con la idea de Alejandro de que este programa se encuentre enterrado, el material es un símil a la tierra. El bloque central es una envolvente de pavés, refleja la zona de vacío. La estancia de día son paneles lisos metálicos de chapa, un elemento que nos refleja y proporciona luz.

ZONAS Y RECORRIDOS
Desde la acera subimos para llegar a la planta central, la estancia de acceso, la escalera nos lleva en sentido ascendente llegando al bloque de tareas activas, en este punto también podemos ascender a la cubierta jardín a través del volumen cúbico donde se oscurece la visión hasta la llegada a la cubierta, que es el final del recorrido. En la llegada al bloque activo, en esta estancia el espacio se abre, pasamos de un reducido acceso a un amplio espacio lleno de luz. A continuación, podemos descender saliendo para la terraza intermedia que nos lleva al jardín y al bloque de vacío que hay bajo la estancia.
Si continuamos el camino de descenso por el jardín, entramos a la zona de dormitorios donde se sitúan los de las hijas y los padres. En este nivel comienza la escalera principal que lleva al vestíbulo, dejando este pasar luz a través del hueco de la escalera. En este punto también podemos bajar, llegando a la zona de los hijos.
El acceso más empleado por la familia se realiza desde la acera, por la puerta de entrada del garaje. Llegamos a un pasadizo que separa los dormitorios de la zona de servicio. Si continuamos hay una estancia que crea el paso a los dormitorios de chicos, desde aquí realizaremos el recorrido mencionado pero de forma ascendente. Aquí volvería a comenzar el recorrido desde cero.
EXPERIENCIA
Cada persona vive o interpreta la vivienda de un modo, la casa tiene diferentes dinamismos. En este caso, se podría decir que es una casa refugio, sus múltiples recorridos y estancias son lo que la caracterizan. El habitante hace activa la profundidad, es un lugar de sueño pero a su vez también se podría relacionar con una zona de tinieblas. En cambio, el volumen activo siempre elimina los miedos de la oscuridad.
Se podría decir que Alejandro de la Sota realiza una vivienda lógica, coloca el programa necesario para una familia numerosa adaptándolo al terreno y distinguiendo sus volúmenes. El recorrido de subir y bajar es el que crea la experiencia de la casa, la comunicación vertical y los diferentes caminos hacen que podamos vivir la vivienda de múltiples opciones y que cada vez sea distinto lo que ocurre.

FUENTES
Alejandro de la Sota (2012). Alejandro de la Sota: Escritos, conversaciones, conferencias. Editorial Gustavo Gili.
Baldellou, Miguel Ángel (1976). Alejandro de la Sota. Servicio de publicaciones del Ministerio de Educación y Ciencia, Madrid
Díaz Camacho, Miguel Ángel (2012). La Casa Domínguez. Alejandro de la Sota: Construir - Habitar. Tesis (Doctoral), E.T.S. Arquitectura (UPM).
García-Burgos Vijande, Alberto. Modernidad Atemporal. Universitat Politècnica de València, 2009.
LA CAEYRA, SEÑOR DOMÍNGUEZ I Material original I Archivo digital Alejandro de la Sota